Makléř: Petra Vlachynská
Telefon: 800 103 ...
E-mail: zakazni ...
Zobrazit celý kontaktTelefon: 800 103 010, 800 103 010
E-mail: zakaznicky.servis@rksting.cz
Nemovitost nabízí
Realitní kancelář STING, s.r.o.
1.máje 540, 739 61 Třinec
Zobrazit kontakt na RK800 103 010
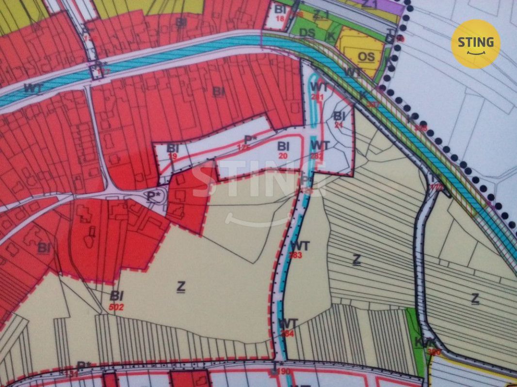
Ve výhradním zastoupení nabízíme exkluzivní rovinatý pozemek v obci Kunovice. V současném územním plánu je parcela vedena v odd. BI - bydlení individuální. Výstavba inženýrských sítí a přístupových cest je předběžně v plánu. Nedaleko těchto pozemků již byla zahájena výstavba rodinných domů. Pozemek se nachází na klidném místě. Jedná se o investici. Více info poskytneme v RK. Do konce dubna 2026 nabízíme prostřednictvím našeho partnera úrokové sazby od 4,69 % p.a. Více informací Vám sdělí náš specialista na prohlídce. <a href="https://www.eurobydleni.cz/pozemky/stavebni-pozemek-bydleni/jablonec-nad-nisou/obec-smrzovka/prodej/"><strong>Prodej stavebního pozemku Smržovka</strong></a>
Prodej stavebního pozemku 700 m2 - Vážany u Uherského Hradiště
Nabízíme ke koupi stavební pozemek o výměře 700 m2 v obci Vážany u Uherského Hradiště, ideální pro výstavbu rodinného domu. Pozemek se nachází v…
Prodej, pozemek pro bydlení, 1721 m2, Uherský Brod, Těšov
Pozemek o rozloze 1721 m2, který je určen územním plánem k zástavbě rodinnými domy. Uliční šíře je 9,6 metru, hloubka 210 metrů. V budoucnu je zde…
Prodej stavebního pozemku Kunovice na Eurobydleni.cz